Project Overview

Share this

Client

Redrow Homes (Kent)

Contract Value:

£7,500,000

Commenced:

May 2022

Redrow Homes (Kent)

Project Overview:

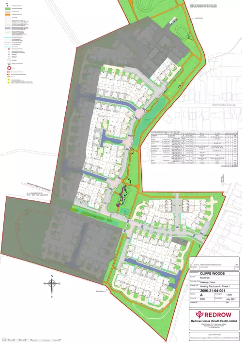
A comprehensive groundworks and infrastructure project for a respected premium homebuilder. Kingsheath Construction was chosen by Redrow Homes (Kent) to deliver the first phase of the Oakleigh Fields development, a new community of 60 homes in Cliffe Woods, Kent. This project requires a full scope of groundworks services, including solutions for varied ground conditions.

Expert Groundworks for a High-Quality Residential Scheme

Our team is delivering the complete groundworks solution for the initial phase of this development. The project involves complex substructure requirements due to variable ground conditions, demonstrating our technical capability and adaptability.

Key services delivered on this groundworks project include:

  • Mixed Substructures: Construction of foundations for all 60 residential plots, employing both traditional trench-fill and piled foundation techniques to engineer the correct solution for the specific ground conditions encountered.
  • Roads and Sewers: Installation of private and adoptable roads and sewer systems, constructed to the precise standards required for local authority adoption.
  • Sustainable Drainage Systems (SuDS): Integration of associated SuDS features to provide effective and environmentally responsible surface water management.
  • External Works: Completion of high-quality hard and soft landscaping, including driveways, footpaths, and garden areas, to create a premium finish in line with the client's brand.

This project reinforces our standing as a trusted groundworks partner in Kent, with the expertise to handle challenging foundation requirements for leading housebuilders.